Аренда помещения , Голосеевский р-н, Коломойский переулок 17 (№ 15-102-903)
Цена: 15 000 грн.

Адрес: Коломойский переулок, 17, Киев, Голосеевский, м. Васильковская
Характеристики
| Цена: | 15 000 грн. |
|---|---|
| № объекта: | 15-102-903 |
| Тип: | торговые площади, кафе, бар, ресторан, объект сферы услуг, прочее |
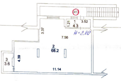
| Площадь: | 76 м2 |
| Дополнительно: | отдельный вход |
Описание
Аренда помещения , Голосеевский р-н, Коломойский переулок 17. Общая площадь помещения 76 м.кв., цокольный этаж. Высота потолков 3м. Помещение находится в жилом доме и имеет свой отдельный вход на фасаде. Вода канализация центральные. Электричество 11,4 кВт, 380 В. Подойдет под офис, салон красоты, сферу услуг, ритейл. В непосредственной близости: метро Васильковская, отделение Новой почты, аптека, государственные учреждения, университеты, институты, общежития. Цена 15000 грн./мес.















