Сдам помещение Голосеевский район ЖК Бульвар Фонтанов общая 447,9 м.кв (№ 1-588-091)
Цена: 8 958 $ + коммунальные

Адрес: Саперное Поле, Киев, Голосеевский, м. Дворец Украина
Характеристики
| Цена: | 8 958 $ + коммунальные |
|---|---|
| № объекта: | 1-588-091 |
| Тип: | торговые площади, кафе, бар, ресторан, объект сферы услуг, прочее |
| Этаж: | 1 / 1 |
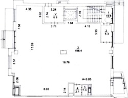
| Площадь: | 447,9 м2 |
| Дополнительно: | отдельный вход |
Описание
Сдам помещение Печерский район ЖК Бульвар Фонтанов, ул. Саперное Поле. Общая площадь помещения 447,9 м.кв., 2 уровня: первый уровень 204 м.кв., один вход, планировка Open Space, удобный подъезд транспорта для выгрузки и второй уровень 198 м.кв., 3 отдельных входа (центральный выходит на аллею фонтанов), планировка Open Space. Состояние помещения – от застройщика, подведены коммуникации, вследствие чего предусмотрены ремонтные каникулы для арендатора. Коммуникации – электроэнергия на все помещение 200 кВт, вода, канализация и отопление централизованы (счетчики). Высота в помещениях 3,5 метра. Помещение светлое, большое количество окон, ЖК Бизнес Класса, отличная локация граничащая с ЖК Премиум Класса (Тарьян Тауер). Целевое использование – отлично подойдет под сферу обслуживания, ритейл, клинику, косметический салон, развивающие студии для детей (рядом детский сад) и т.д. Без Комиссии
Цена 20 у.е. за м.кв. на период воен. действий







