Продается объект Вячеслава Черновола, Киев, Шевченковский (№ 2-466-302)
Цена: 1 200 000 $

Адрес: Вячеслава Черновола, Киев, Шевченковский
Характеристики
| Цена: | 1 200 000 $ |
|---|---|
| № объекта: | 2-466-302 |
| Тип: | кафе, бар, ресторан, гостиница, отель, прочее |
| Площадь: | 600 м2 |
Описание
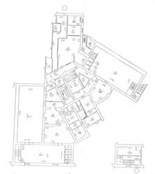
Продам помещение. специализация- ресторан расположен в густонаселенном жилом массиве в центре Киева. Шевченковский р-н. Фасадное угловое помещение общей площадью 600 кв.м.,(Это сам ресторан , площадью 475 м.кв. и бильярдный зал, площадью 125 м.кв. со своей вип комнатой, уборными для гостей, баром внутри большого зала, отдельной входной группой и отдельным выходом на задний двор, что позволяет реализовать любые идеи будущего владельца.) две входные группы на улицы Черновола и Речную, три выхода во двор дома. В помещении три больших зала и две VIP комнаты. Высота потолков 3,95 м.
При застройке дома, объект изначально проектировался под ресторан, поэтому все технологические помещения согласно нормам разбиты на цеха и дополнительные необходимые помещения. . Технологические помещения оснащены всем профессиональным оборудованием для работы.
Качественная приточно-вытяжная система вентиляции на залы, рабочие зоны и отдельно на мангал. Обособленный внутренний вент. канал до крыши дома. Полная звукоизоляция для жильцов дома, за счёт двух нежилых этажей над рестораном. За счёт перепада уровней земельного участка, на котором стоит дом, с внутренней стороны дома помещение ресторана это, фактически, первый этаж. С фасада входная группа - также, первый этаж с гардеробом, комнатой охраны и красивым лестничным маршем в цокольное помещение ресторана. Мощность электроэнергии 200 кВт.
Помещение идеально подходит либо для высококачественного банкетного ресторана, премиум караоке, клуб с шикарной кухней, клуб закрытого типа, под аптеку или продуктовый магазин. Цена 1 200 000 у.е Реальному покупателю торг От Собственника













