Продам ОСЗ общей S 557 м.кв. центр Борисполь, 24 сотки (№ 2-486-676)
Цена: 400 000 $

Характеристики
Цена: | 400 000 $ |
---|---|
№ объекта: | 2-486-676 |
Тип: | объект сферы услуг, гостиница, отель, прочее |
Этаж: | 1 / 2 |
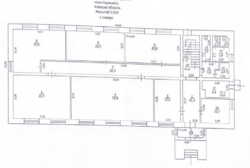
Площадь: | 557 м2 |
Дополнительно: | отдельный вход, парковка |
Адрес: Киевская, Бориспольский, Борисполь
Продажа отдельно стоящего здания, Киевская область, г. Борисполь, центр. Общая площадь помещений 557 м.кв. (два этажа) Земельный участок: 0,24 га (аренда 10 лет). Коммуникации
центральный водопровод /канализация, Электричество 15 кВт с возможностью увеличения. Индивидуальное отопление газовое или твердотопливный котел. Территория ограждена, парковка с фасадной части на 8-10авто. Удобная транспортная развязка. Центр города Борисполь. По соседству Детская центральная поликлиника и больница. Центральный рынок. Объект полностью в аренде. Отличный ликвидный объект. Помещение идеально подходит для частного медицинского центра или поликлиники, учебного заведения (детский сад, начальная школа, институт, курсы, тренинговый центр), гостиницы/хостела/общежития, офисного центра, сфера услуг, размещения производства легкой промышленности и т.д. Есть возможность расширения помещения и увеличения его площади. Собственник физ. лицо .
Цена 400 000 у.е.
С Уважением АН «Сегмент» Егор +380969629009