Продажа помещения общей S 182 м.кв. Печерский район ул. Большая Васильковская (№ 2-488-445)
Цена: 250 000 $

Адрес: ул. Большая Васильковская, Киев, Печерский , м. Площадь Льва Толстого
Характеристики
| Цена: | 250 000 $ |
|---|---|
| № объекта: | 2-488-445 |
| Тип: | прочее |
| Этаж: | 1 / 5 |
| Площадь: | 182 м2 |
| Дополнительно: | отдельный вход |
Описание
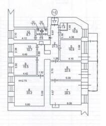
Продажа помещения общей S 182 м.кв. Печерский район ул. Большая Васильковская. Помещение располагаются на первом этаже жилого дома. Присутствуют все коммуникации. Планировка кабинетная, коридор, кухня два санузла, два балкона. Высота потолков 3,65 м. Расположено помещение в пешей доступности от станций метро Льва Толстого, Олимпийская, Дворец Спорта. Отлично подходит под офис, сферу услуг. Цена 250000 у.е.
С Уважением АН «СЕГМЕНТ» Егор +380969629009





















