Аренда бизнес-центра 10795 м2. (№ 1-481-395)
Цена: 320 грн.

Характеристики
Цена: | 320 грн. |
---|---|
№ объекта: | 1-481-395 |
Тип: | бизнес центр |
Площадь: | 10795 м2 |
Этаж: | - / 15 |
Дополнительно: | кондиционер, парковка |
Адрес: Киев, Деснянский, Гагарина Юрия просп.
Отдельно стоящее здание
Общая площадь 10795 м2.
паркинг 200 мм
Этажность 15
Лифты 4 пассажирских и 1 грузовой
Высота потолков 2.9 м2
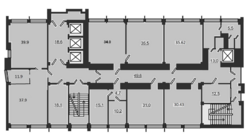
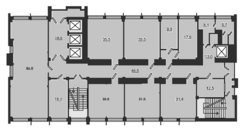
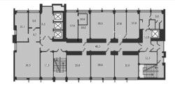
Площадь типового этажа 420 м2
Вентиляция и кондиционирование - сплит системы
Центральная городская система отопления
Пожарная сигнализация
Система дымоудаления и оповещения о пожаре
Система контроля доступа
Диспетчерезация здания
Круглосуточная охрана и видеонаблюдение.
Доступ к зданию 24/7, 365
Офисы с ремонтом от 36 до 1800 кв.м.
Рассположение - 3 минуты пешей доступности от м. 'Черниговская'
Развитая инфраструктура
Удобная транспортная развязка
Офисы с ремонтом
Круглосуточная охрана и видеонаблюдение
Доступ 24/7, 365
Арендная ставка : 320 грн за 1 кв.м. (включая НДС и эксплуатационные платежи).
Коммунальные платежи: по факту потребления.