Аренда бизнес-центра класса В 5501.7 м2. (№ 1-481-396)
Цена: 8 $

Характеристики
Цена: | 8 $ |
---|---|
№ объекта: | 1-481-396 |
Тип: | бизнес центр |
Площадь: | 5501.7 м2 |
Этаж: | - / 2 |
Дополнительно: | кондиционер, парковка |
Адрес: Киев, Соломенский, Полевая ул.
Общая площадь 5501.7 м2
Этажность 2
Высота потолков 3.6
Лифтов нет
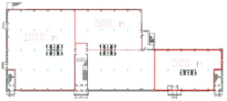
Площадь типового этажа 2750 м2
Арендная ставка 8.33 у.е. за м2 без НДС
Вакантность 1 этаж - 1000 м2, 500 м2, 500 м2(возможна аренда одним лотом)
2 этаж - 1500 м2.
Эксплуатационные платежи 2.5 у.е. без НДС
Планировка открытая
Охрана, видеонаблюдение, система отопления, противопожарная система, вентиляция, кондиционирование