Аренда офиса 55 м2. (№ 1-482-703)
Цена: 692 $

Адрес: Семьи Хохловых ул., Киев, Шевченковский
Характеристики
| Цена: | 692 $ |
|---|---|
| № объекта: | 1-482-703 |
| Тип: | бизнес центр |
| Площадь: | 55 м2 |
| Этаж: | 2 / - |
| Дополнительно: | кондиционер, парковка |
Описание
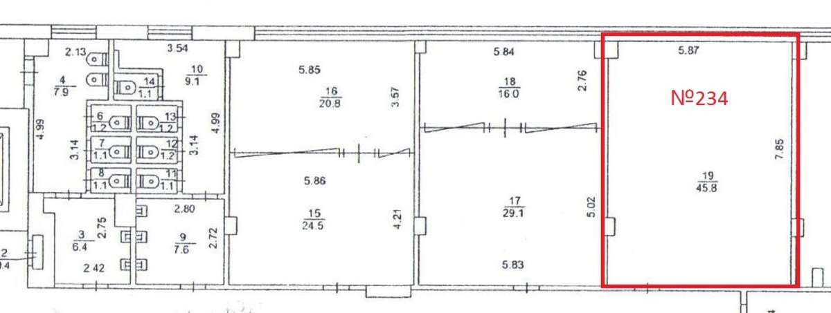
Оренда офісу №234: 1 кабінет (2 поверх) - 54,96 м.кв з урахуванням коефіцієнту площ загального користування - 1,2 у БЦ.
📍 Бізнес-центр розташований у Шевченківському районі Києва за адресою вул. Сім'ї Хохлових. 10 хвилин пішки до станції метро Дорогожичі.
Переваги БЦ:
🔹 сучасні інженерні системи;
🔹 3 пасажирських і 1 вантажний ліфт;
🔹 складські приміщення у внутрішньому дворі;
🔹 цілодобова охорона;
🔹 зручна транспортна розв'язка;
🔹 закрита парковка
🔹 пропускна система.










