Аренда офисного помещения 395 м2 (№ 1-483-863)
Цена: 5 925 $

Адрес: Лейпцигская ул., Киев, Печерский
Характеристики
| Цена: | 5 925 $ |
|---|---|
| № объекта: | 1-483-863 |
| Тип: | бизнес центр |
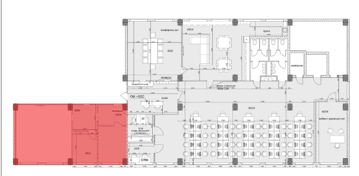
| Площадь: | 395 м2 |
| Этаж: | 2 / - |
| Дополнительно: | кондиционер, парковка |
Описание
Арендная ставка – 15 $/м² без НДС.
Эксплуатационные расходы – 4,2 $/м² без НДС. Коммунальные – по факту потребления (по узлам учета). Крытый паркинг – 125 $/место без НДС.
Уличный паркинг - 108 $/место без НДС
Передача помещения - март 2022
ПАРКИНГ ОТКРЫТЙ : 72 ПАКОМЕСТ ЭТАЖНОСТЬ: 6
ЛИФТЫ: 2 ПАССАЖИРСКИХ ( НА 8 И 16 ЧЕЛОВЕК)
ВЫСОТА ПОТОЛКОВ: 3 М
КЛАСС В
·Фасад – вентилируемый утепленный.
·Окна – алюминиевые с энергосберегающим двойным стеклопакетом.
·Система вентиляции – центральная приточно-вытяжная.
·Система кондиционирования – центральная – чиллер-фанкойл («Trane» и « Daikin»).
·Системаотопления – собственная газовая котельная
(«VIESSMANN»).
·Пожарная сигнализация.
·Система оповещения о пожаре.
-Полностью готовый ремонт
-Планировка open- space с наличием нескольких комнат
-Потолки – подвесные
-Светильники – офисные растровые.
-Стены – окрашены в белый цвет.
-Пол – ковролин.
-Hазвитая инфраструктура
-Hесторан быстрого питания Market Plaza
-Кофейня Idealist
-Coffe Point
-Банкомат
-Cистема кондиционирования и вентиляции;
-Пожарная сигнализация;
-Cистема пожаротушения и дымоудаления;







