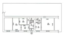
Аренда офисного помещения общей площадью 92,8 м.кв. Печерский. (№ 1-486-724)
Цена: 32 480 грн. + коммунальные

Адрес: Лейпцигская ул., 14, Киев, Печерский , м. Печерская
Характеристики
| Цена: | 32 480 грн. + коммунальные |
|---|---|
| № объекта: | 1-486-724 |
| Тип: | нежилое помещение в жилом доме |
| Площадь: | 92,8 м2 |
| Кабинетов: | 4 |
| Этаж: | 1 / 10 |
| Дополнительно: | отдельный вход, кондиционер |
Описание
Аренда офисного помещения общей площадью 92,8 м.кв., г. Киев, Печерский р-н, ул. Лейпцигская 14. Расположенного на первом этаже жилого дома. Городские коммуникации, закрепленная парковка на несколько паркомест. Центральный деловой р-н города, хорошее месторасположение, в пешей доступности метро « Печерская» , Киево-Печерская Лавра, отделение «Новой почты», супермаркет « Велика Кишеня» , до 12 мин. 350грн/м.кв. + коммунальные по счетчикам.
С Уважением АН «Сегмент» Егор +380969629009
















