Сдам в аренду помещение общей площадью 420,3 м.кв.с.м. Арсенальная (№ 1-488-306)
Цена: 7 560 $ + коммунальные

Характеристики
Цена: | 7 560 $ + коммунальные |
---|---|
№ объекта: | 1-488-306 |
Тип: | бизнес центр |
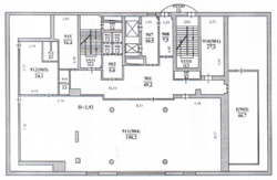
Площадь: | 420 м2 |
Кабинетов: | 3 |
Этаж: | 1 / 9 |
Дополнительно: | кондиционер |
Адрес: Киев, Крестовая ул. (Гайцана Николая), м. Арсенальная
Сдам в аренду помещение общей площадью 420,3 м.кв. (единый блок) расположенный на девятом этаже современного БЦ в центре делового квартала по ул. Князей Острожских. Помещение оснащено всеми необходимыми коммуникациями для комфортной работы. Планировка OPEN SPACE и кабинеты, кухня, санузлы. Работает система охраны и пропуска. Находится в пешей доступности от станции метро «Арсенальная».
Цена: 18 у.е./кв.м. 2у.е./м.кв. OPEX + коммунальные платежи. Коэффициент мест общего пользования 1,25 %.
Без комиссии.
С Уважением , АН «СЕГМЕНТ» Егор +380969629009