Сдам в аренду офис общей S 510 м.кв. ст.м. Почайная (№ 1-488-479)
Цена: 255 000 грн. + коммунальные

Характеристики
Цена: | 255 000 грн. + коммунальные |
---|---|
№ объекта: | 1-488-479 |
Тип: | бизнес центр |
Площадь: | 510 м2 |
Кабинетов: | 15 |
Этаж: | 1 / 4 |
Дополнительно: | отдельный вход, кондиционер, парковка |
Адрес: Киев, Оболонский, Бандеры Степана просп. (Московский), м. Петровка
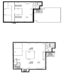
Сдам в аренду офисное помещение общей площадью 510 м.кв. в двух уровнях. Станция метро Почайная в пешей доступности 5 минут. Присутствуют все необходимые коммуникации. Планировка смешанная Open Space, комната для кухни, переговорная. Все помещения с хорошим ремонтом. Удобное место расположение, станция метро Почайная пять минут пешей доступности. Остановка общественного транспорта в любом направлении. Книжный рынок, ТРЦ «Городок», McDonald’s. Отлично подходит для стабильной работы большого коллектива.
Цена: 500грн/м.кв.(ставка+Opex)+коммунальные . для первых трех месяцев скидка 30%.
С Уважением АН «Сегмент» Егор +380969629009