Сдам в аренду помещение общей S 168 м.кв. ст.м. Тараса Шевченко (№ 1-495-467)
Цена: 47 712 грн. + коммунальные

Характеристики
Цена: | 47 712 грн. + коммунальные |
---|---|
№ объекта: | 1-495-467 |
Тип: | бизнес центр |
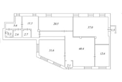
Площадь: | 168 м2 |
Кабинетов: | 6 |
Этаж: | 1 / 4 |
Дополнительно: | отдельный вход, кондиционер, парковка |
Адрес: Киев, Подольский, Межигорская ул., м. Тараса Шевченко
Сдам в аренду помешение общей площадью 168 м.кв. (1этаж) ст.м. Тараса Шевченко (500м.). Планировка OPEN SPACE кабинеты (6шт.) Санузлы в блоке. Современный БЦ, хороший ремонт, присутствуют все необходимые коммуникации. Дизель генератор. Охрана, видеонаблюдение 24/7. Развитая инфраструктура. Также актуальны блоки 144м.кв., 200 м.кв. Отлично подходит под офис, интернет магазин, show room, сфера услуг. Заявку для просмотра давать за ранее.
Цена: СТАВКА 284 грн./м.кв.(НДС)+OPEX 42 грн./м.кв.(НДС)+Отопление 34 грн./м.кв.(НДС)
коммунальные по счетчикам. БЕЗ КОМИССИИ.
С Уважением АН «Сегмент» Егор +380969629009