Сдам в аренду помещение общей S 316 м.кв. ПОДОЛ (№ 1-495-552)
Цена: 89 744 грн. + коммунальные

Характеристики
Цена: | 89 744 грн. + коммунальные |
---|---|
№ объекта: | 1-495-552 |
Тип: | бизнес центр |
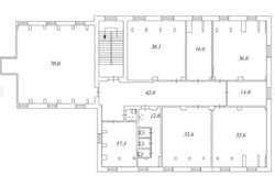
Площадь: | 316 м2 |
Кабинетов: | 6 |
Этаж: | 5 / 5 |
Дополнительно: | отдельный вход, кондиционер, парковка |
Адрес: Киев, Подольский, Межигорская ул., м. Тараса Шевченко
Сдам в аренду офисные помешение общей площадью 316 м.кв. (5этаж) ст.м. Тараса Шевченко (500м.). Планировка OPEN SPACE и кабинеты (6шт.) Кухня с мебелью. Санузлы в блоке. Современный БЦ, хороший ремонт, присутствуют все необходимые коммуникации. Дизель генератор. Охрана видеонаблюдение 24/7. Развитая инфраструктура. Также актуальны блоки от 144м.кв., 200 м.кв. 386м.кв. Заявку для просмотра давать за ранее. БЕЗ КОМИССИИ.
Цена: СТАВКА 284 грн./м.кв.(НДС)+OPEX 42 грн./м.кв.(НДС)+Отопление 34 грн./м.кв.(НДС)
коммунальные по счетчикам.
С Уважением АН «Сегмент» Егор +380969629009