Продается офис Лейпцигская ул., 14, Киев, Печерский , м. Петровка (№ 239-385)
Цена: 220 000 $

Адрес: Лейпцигская ул., 14, Киев, Печерский , м. Петровка
Характеристики
| Цена: | 220 000 $ |
|---|---|
| № объекта: | 239-385 |
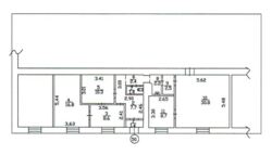
| Тип: | нежилое помещение в жилом доме |
| Площадь: | 92,8 м2 |
| Кабинетов: | 4 |
| Этаж: | 1 / 10 |
| Дополнительно: | отдельный вход, парковка |
Описание
Продажа нежилого помещения, г. Киев, Печерский р-н, ул. Лейпцигская 14. Общая площадь помещений 92,8 м.кв., расположенного на первом этаже жилого дома. Городские коммуникации, закрепленная парковка на несколько парко мест. Центральный деловой р-н города, хорошее месторасположение, в пешей доступности метро «Печерская», Киево-Печерская Лавра, отделение «Новой почты», супермаркет «Велика Кишеня», до 12 мин. Подойдет под офис, нотариус, клинику, стоматологию. Цена 220 000 у.е.
С Уважением АН «Сегмент» Егор +380969629009















