Аренда склада 1200 м2 ул. Ремонт под потребности клиента. Ушинского, Соломенский р-н (№ 164-255)
Цена: 144 000 грн.

Адрес: Ушинского, Киев
Характеристики
| Цена: | 144 000 грн. |
|---|---|
| № объекта: | 164-255 |
| Тип: | складские помещения, производственные помещения |
| Площадь: | 1200 м2 |
| Рампа: | - |
| Кран балка: | - |
| Погрузчик/услуги : | - |
| Офис: | + |
| Пол: | Бетон |
| Состояние: | Готов к использованию |
| Высота : | 5 |
| Цена за м2.: | 120 |
| Запас Э/Э кВт: | 150 |
| Этаж: | 1-2 |
| Подъезд фур: | + |
| Использование: | Склад/производство |
| Тип строения: | Капитальное |
| Отопление: | - |
| Охрана: | + |
| Возможна продажа: | - |
Описание
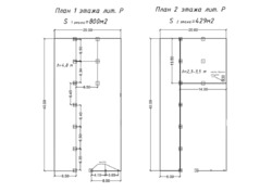
Предлагается в аренду 2-х эт. помещение под склад или производство, расположенное в Соломенском районе, ул. Ушинского. Площадь склада — 1229 кв.м.. Пл. 1 –эт. 800 кв.м, высота 5м, высота 2-эт. 429 кв.м. Электроснабжение - до 150 кВт (с возможностью увеличить мощность). Имеется водопровод, канализация. Закрытая территория, круглосуточная охрана, видеонаблюдение, наземный паркинг. Возможен ремонт под клиента. Стоимость аренды - 120 грн/кв.м. с НДС. Электричество, ОПЕКС оплачиваются отдельно. Без комиссии, от собственника.




