Аренда рабочего цеха, 1100 м2. (№ 164-636)
Цена: 66 000 грн.

Характеристики
Цена: | 66 000 грн. |
---|---|
№ объекта: | 164-636 |
Тип: | складские помещения, производственные помещения, прочее |
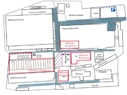
Площадь: | 1100 м2 |
Участок: | 50 сот |
Рампа: | + |
Кран балка: | - |
Погрузчик/услуги : | - |
Офис: | + |
Пол: | Антипыль |
Состояние: | Готов к использованию |
Высота : | 6 |
Цена за м2.: | 60 |
Запас Э/Э кВт: | 1280 |
Этаж: | |
Подъезд фур: | + |
Использование: | Склад/производство |
Тип строения: | Капитальное |
Отопление: | + |
Охрана: | + |
Возможна продажа: | - |
Дополнительно: | есть ЖД ветка |
Адрес: Киевская, Фастовский, Борова
РАСПОЛОЖЕНИЕ
30 км от КП Одесское направление.
Характеристика объекта
• Непосредственная близость к станции железнодорожного вокзала пос. Боровая
• Отличное транспортное сообщение - трасса Киев – Одесса
• Собственная железнодорожная ветка
• Предлагаемая в аренду площадь – до 15 000 м²
• Высота до фермы – 6 м
• Шаг колон – 6 х 24м
• Промышленный бетонный пол с антипылевым покрытием и возможностью нагрузки в 8 т/м²
• 2 автомобильные рампы и 1 ворота в нулевом уровне
• Энергообеспечение – 1 280 КВт (на производственной площадке 3 ТП, общей мощностью – 3,4
МВт)
• Спринклерная система пожаротушения и пожарная сигнализация
• Автономная газовая система отопления
• Оборудованный административно-бытовой корпус
• Заводская столовая на 150 посадочных мест
• Компрессорная подстанция
• Вместительная парковка
• Охраняемая территория
• Возможность расширения площадей
• Прилегающая территория – 0,5 га
• Ворота 4,1м * 4,5м
• Дверь входная 1м * 2м
Коммерческие условия:
• Арендная ставка – 60 грн / м² с уч НДС
• Эксплуатационные затраты – входят в стоимость аренды
• Коммунальные платежи – по факту потребления.