Главная >> Продажа производственной и промышленной недвижимости >> Риэлтор Константин Кузин >> Объект №252022
Производственно-складской комплекс 9000 м2. (№ 252-022)
Цена: 2 500 000 $

Характеристики
Цена: | 2 500 000 $ |
---|---|
№ объекта: | 252-022 |
Тип: | складские помещения, производственные помещения |
Площадь: | 9000 м2 |
Участок: | 150 сот |
Рампа: | + |
Кран балка: | + |
Офис: | + |
Пол: | Антипыль |
Состояние: | Готов к использованию |
Высота: | 12 |
Этаж: | 1 |
Тип строения: | Капитальное |
Запас Э/Э кВт: | 2000 |
Собственник: | Юридическое лицо |
Цена м2: |
Адрес: Киевская, Броварской, Бровары
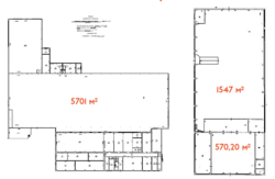
Продажа производственно-складского комплекса. Комплекс расположен в 15 км от Киева. Общая площадь строений 9023 м2. административная часть около 1000 м2. Земельный участок 1.5 Га. Электроэнергия 2000 кВт., дизельный генератор 250 кВт. Вода скважина, канализация городская.
Производственно-складская площадь разделена на два блока:
- 5700 м2. высота до низа фермы 4.13 м. промышленный антипылевой пол с топинговым покрытием. Рампа с пандусом и нулевым заездом в склад;
- 2117 м2. высота потолка от 6 до 12 м. мостовой кран 32 тонны. Пол бетон. Вода канализация заведены.
Офисная часть кабинетная система. Ремонт, видеонаблюдение, отопление кондиционирование.
Цена 2,5 млн. дол.