Продажа склада 780 кв.м. в Киево-Святошинском р-не (№ 252-025)
Цена: 620 000 $

Адрес: Хотов, Киево-Святошинский, Киевская
Характеристики
| Цена: | 620 000 $ |
|---|---|
| № объекта: | 252-025 |
| Тип: | складские помещения, производственные помещения |
| Площадь: | 780 м2 |
| Рампа: | - |
| Кран балка: | - |
| Офис: | - |
| Пол: | Антипыль |
| Состояние: | Готов к использованию |
| Высота: | 6 |
| Этаж: | 1 |
| Тип строения: | Сэндвич-панель |
| Запас Э/Э кВт: | 50 |
| Статус земли: | В собственности |
| Цена м2: | 795$ |
Описание
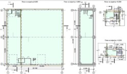
Продажа нового склада, расположенного в Киево-Святошинском р-не, Хотове. Общая площадь склада 780 кв.м., расположен на земельном участке - 0.11га. Высота потолка – 6 м. Пол – антипылевое покрытие. Шаг колон -18*12. Стены: сэндвич панель – 80 мм. Нагрузка на пол на 1 кв.м. – 4 тонны. Электрическое отопление. Мощность – 50 кВт. Скважина - 50м. Септик. Есть антресоль, в которой около 20 м2, обустроенная под офис. С/узел. Подведен интернет. Стоимость 620 000 $. Предложение без комиссии.










