Продажа нежилого производственного помещения (№ 253-031)
Цена: 390 000 $

Характеристики
Цена: | 390 000 $ |
---|---|
№ объекта: | 253-031 |
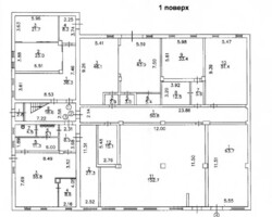
Площадь: | 923,3 м2 |
Рампа: | - |
Кран балка: | - |
Офис: | - |
Пол: | Бетон |
Состояние: | Готов к использованию |
Высота: | 4 |
Этаж: | 1 |
Тип строения: | Капитальное |
Запас Э/Э кВт: | 100 |
Собственник: | Юридическое лицо |
Цена м2: |
Адрес: Киев, Вискозная ул.
Продажа нежилого производственного помещения, расположенного в промзоне Деснянского р-на, ул. Вискозная. Общая площадь здания – 923,3 кв.м. Площадь земельного участка на котором расположен объект недвижимости – 0,3223 га. Кадастровый номер 8000000000 62:0680206. Земельный участок равнинный, прилегающий к проезжей части. Объект размещен недалеко от пересечения оживленных транспортных автомагистралей. Ближайшая станция метро Черниговская. Прямой заезд с ул. Вискозная. Объект недвижимости с земельным участком пригоден для строительства, реконструкции и эксплуатации здания с многофункциональным назначением, для организации производственно складского помещения, организации логистического центра, под СТО. Имеется площадка для парковки транспорта и его обслуживания. Коммуникации: Наличие городской воды и канализации, Электроэнергия до – 100 Квт. Стоимость продажи - 390 000 $ с НДС.